
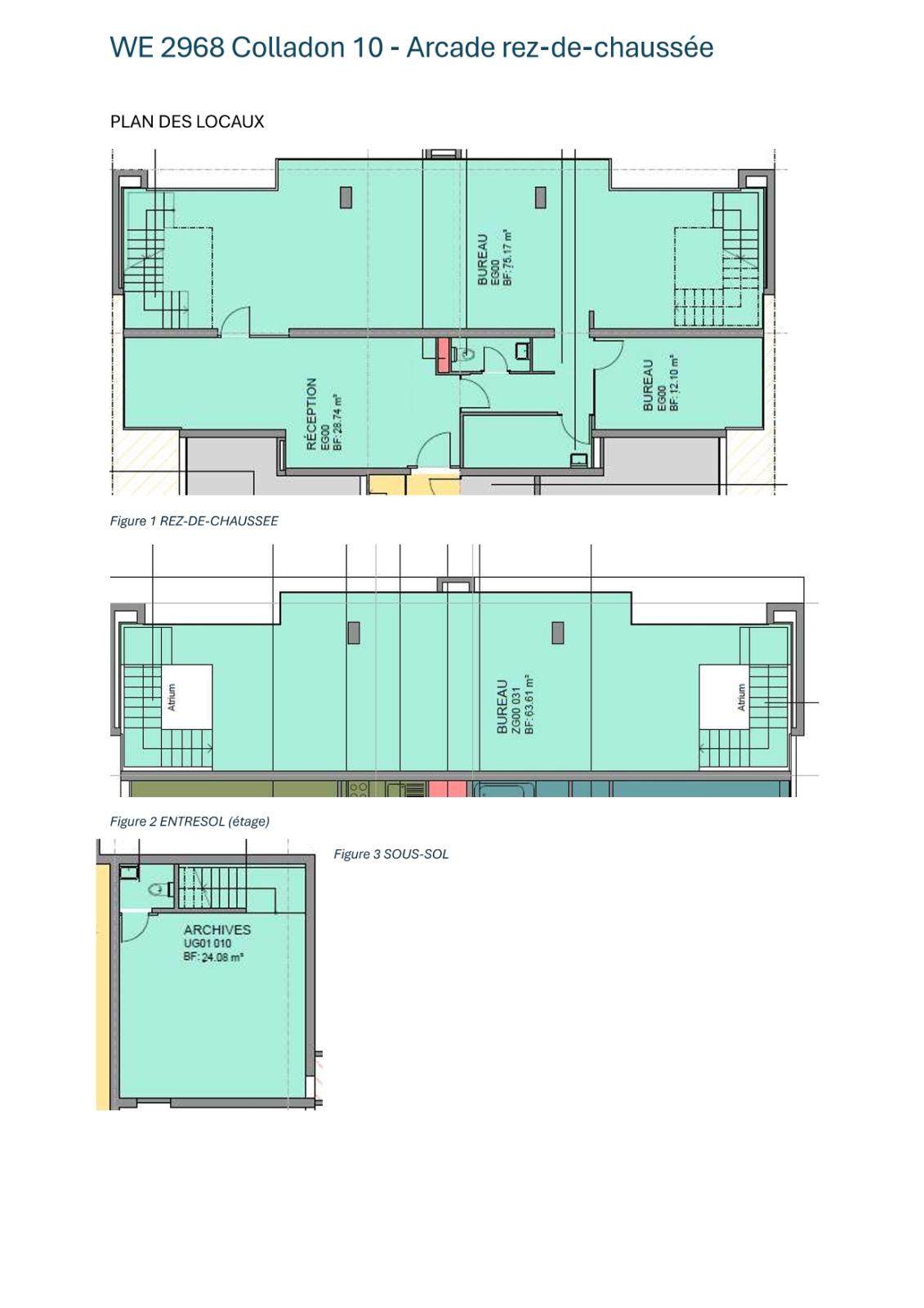
Arcade de 286 m2 environ au rez-de-chaussée avec...
Genève
CHF 7'150.-
Découvrir ce bien
Genève | Arcade
250 m²
10
Référence 400700.499010 Fiche du bien

Arcade de 286 m2 environ au rez-de-chaussée avec...
Genève
Découvrir ce bien

Arcade commerciale d'environ 81 m2
Genève
Découvrir ce bien