LES ACACIAS
Sur plan - 6 pièces aux Acacias
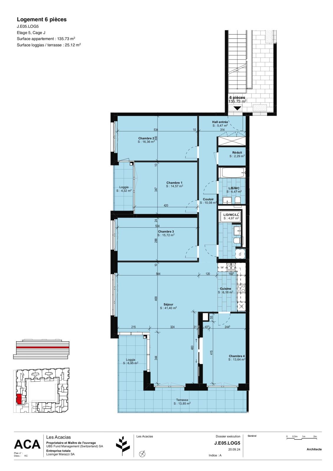
Réf J.E05.LOG5 Fiche du bien
6.0 pièces
4 chambres
136 m²
2 salles de bain
Loyer net : CHF 3'870.-
Charges : CHF 554.-
Les Acacias proposent 320 logements neufs à la location (typologies allant du 2 au 6 pièces), une cour intérieure calme et des surfaces commerciales au rez-de-chaussée.
Ce 6 pièces d’angle est idéal pour les familles nombreuses (minimum 4 occupants).
Il se distribue comme suit :
• Hall d’entrée avec armoire encastrée
• Cuisine d’angle ouverte sur le séjour (agencée et équipée avec de l’électroménager Miele : réfrigérateur, congélateur, plaques à induction, four à chaleur tournante, hotte, lave-vaisselle)
• Séjour avec accès à la terrasse / loggia
• 4 chambres à coucher dont 2 avec accès à la seconde loggia et 1 à la terrasse / loggia
• Salle de bains avec baignoire (pas de pare-bains ni de tringle), WC et lavabo
• Salle de douche avec douche (pas de cabine vitrée, mais tringle métallique), WC et lavabo + coin buanderie (attentes eau et électricité pour colonne de lavage)
• Réduit avec attentes eau et électricité pour colonne de lavage
Equipements :
• Parquet au sol dans le séjour et les chambres à coucher
• Carrelage au sol dans l’espace cuisine
• Carrelage au sol et faïences sur toute la hauteur des murs pour les salles d’eau
• Chauffage au sol (CAD) avec régulation dans les pièces
• Stores manuels
2 loggias (avec luminaire au plafond), 1 terrasse ainsi qu’une cave (porte en bardage ajouré, sans luminaire, ni prise électrique) complètent les prestations de ce bien.
Chaque allée est pourvue d’une buanderie commune et d’un local poussettes. 9 locaux vélos sont situés en rez-de-chaussée, dont 1 destiné aux vélos-cargo, ainsi que 3 locaux vélos en sous-sol.
Appartements sur plan uniquement.
Retrouverez nos appartements 4, 5 et 6 pièces sur le site https://www.les-acacias.ch. En cas d'intérêt, nous contacter par mail uniquement : acacias@grrsa.ch
Images non contractuelles

Isabella
Giramma
isabella.giramma@grrsa.ch









